Storeble Panorama med hems

Storeble panorama med hems er en hyllest til fjellheimens vakre lys og farger. Vinduene i det fremskutte panoramautbygget strekker seg fra gulv til tak og tilbyr en god utsikt over høyfjellet.

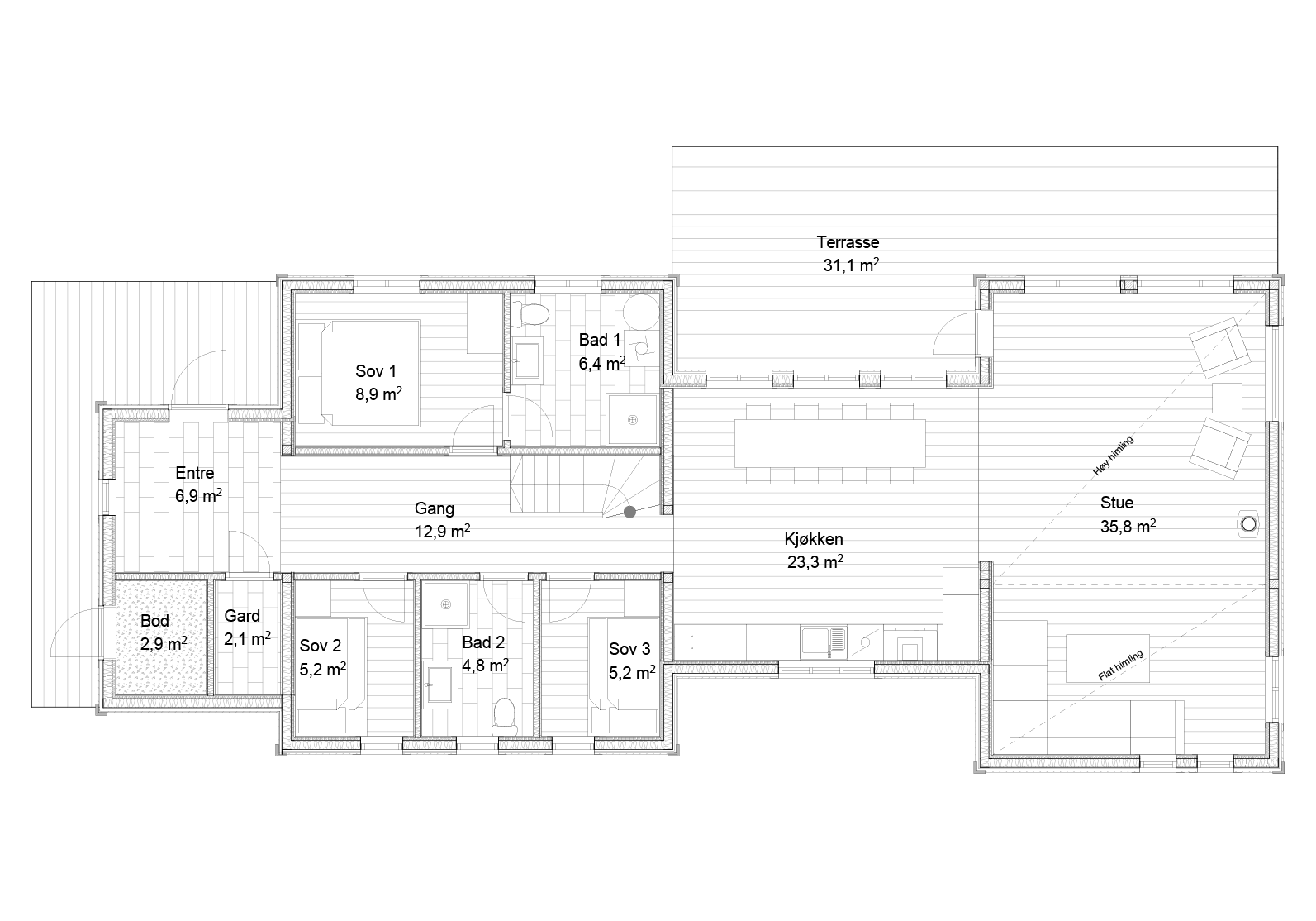
Kjøkken og stue er praktisk plassert langs utgangen til delvis overbygd terrasse og byr på gode, skjermede uteplasser langs solveggen. Utmerket for utsiktstomtene.

Grunnplan

Hems

Gautefalltomter tar forbehold om at ikke alle hyttetyper passer inn på alle tomter.

I disse prisene inngår følgende: Infrastruktur på feltet, eiendomstomt, opparbeidelse av tomt med parkering for minimum to biler, støping av grunnmursplate klar for bygging, nøkkelferdig hytte fra våre leverandører.

Dette kommer i tillegg: Dokumentavgift på tomt, torvtak, byggestrøm, renovasjon under bygging, byggesaksgebyr og tilkoblingsavgift til Drangedal kommune. Totalt vil tilleggskostnadene beløpe seg til kr 210.000 – 250.000 +/- 10 %, avhengig av hyttestørrelse og tomtepris.

Innvendig og utvendig overflatebehandling, er ikke inkludert i ovennevnte, da dette er noe mange velger å utføre selv.

Gautefalltomter AS tar forbehold om trykkfeil og endringer.

Nøkkelinfo

BRA:
116,4m²

Antall soverom:
4

Grunnplan:
Stue, kjøkken, 2 bad, 3 soverom, utvendig bod, garderobe og romslig entré/gang.

Hems:*
2 hemsrom som også kan benyttes til soverom.

*) Soverom og stue på hems har lavere takhøyde, og inngår ikke i BRA.

Prisinformasjon

På Gautefall selges hyttene nøkkelferdig på ferdig opparbeidet eiendomstomt. Denne hytta fås nøkkelferdig på de ulike tomte- kategoriene til prisene under. Omkostninger kommer i tillegg. Disse er beskrevet under nøkkelferdige hytter.

5 040 000,-

5 190 000,-

5 340 000,-

5 490 000,-

Se våre hyttefelt

Rytterspranget på Gautefall ligger sentralt ved siden av skibakkene på Gautefallheia. Har man hytte på Rytterspranget kan man parkere bilen når man ankommer hytta, og ikke bruke den før man skal hjem. Alle fasiliteter ligger i gangavstand til hyttefeltene.

Gå tilbake
Vi kontakter deg!

Legg igjen en melding så vil vi kontakte deg.

Vi kontakter deg!

Legg igjen en melding så vil vi kontakte deg.

Start typing and press Enter to search