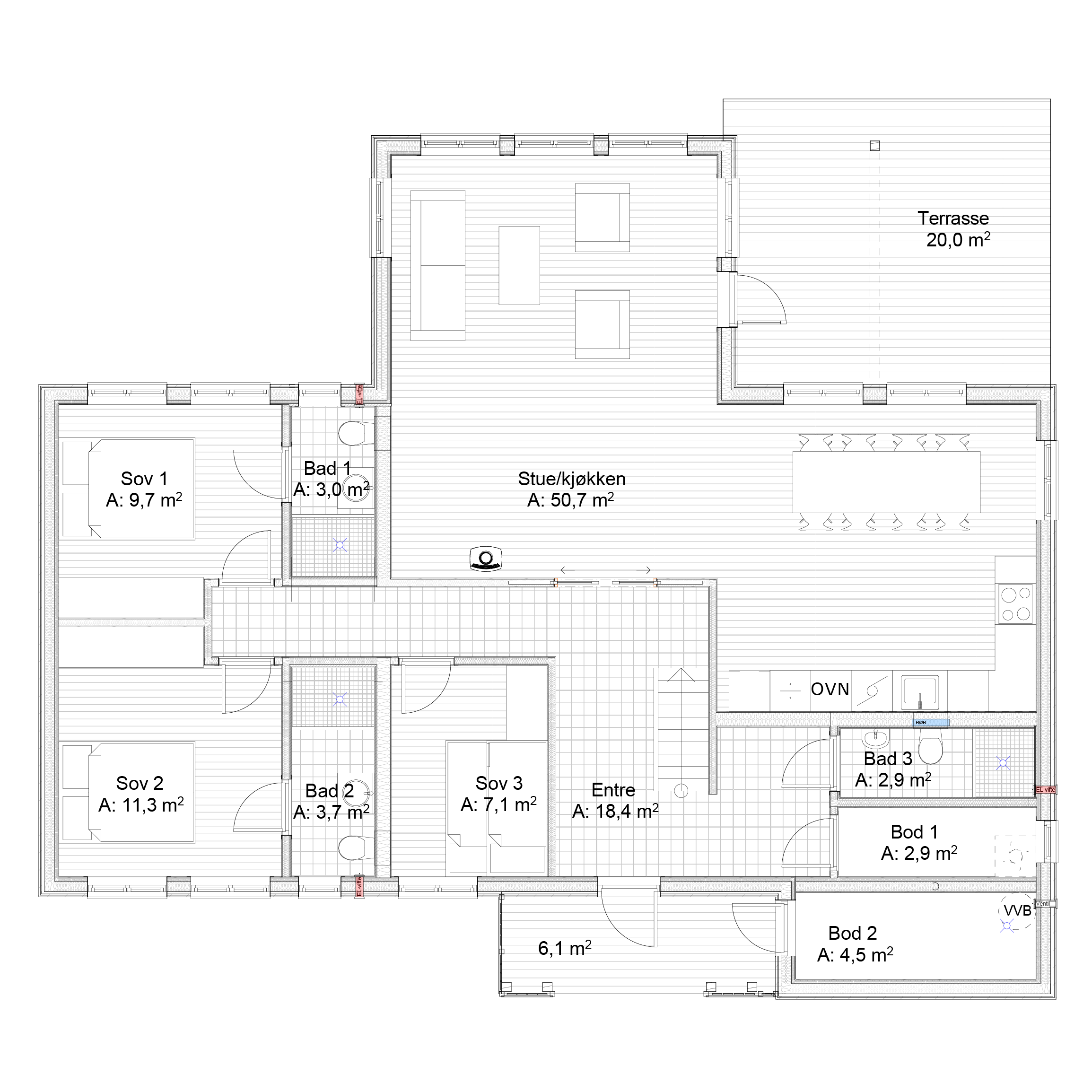
Rondablikk 120 er en imponerende hytte med en gjennomtenkt planløsning som kombinerer funksjonalitet med komfort

Grunnplan

Hems
Hyttas arkitektur byr på lune, skjermede uterom som forlenger sesongen og skaper en naturlig flyt mellom inne- og utemiljøet.
Allerede ved inngangspartiet møtes du av en åpen og innbydende atmosfære. Blikket trekkes naturlig mot stuas elegante utbygg i front, hvor store vindusflater slipper inn både dagslyset og den vakre naturen utenfor.
Denne fleksible delingsmodellen er perfekt for både familier og utleie. Hytta har to store master soverom, hver med sitt private bad, noe som gir optimale muligheter for deling. Enten to familier ønsker sine egne separate avdelinger, eller man ønsker å kombinere egen bruk med utleie, gir løsningen stor fleksibilitet. De private rommene kan enkelt låses av ved behov.
Med totalt tre bad, tre romslige soverom i første etasje og fire innredningsvennlige rom på hemsen, er det rikelig med plass til både familie og gjester. Rondablikk 120 er en hytte som innfrir drømmen om det gode hytteliv – enten du søker ro og rekreasjon eller vil dele opplevelsene med andre.
Gautefalltomter tar forbehold om at ikke alle hyttetyper passer inn på alle tomter.
I disse prisene inngår følgende: Infrastruktur på feltet, eiendomstomt, opparbeidelse av tomt med parkering for minimum to biler, støping av grunnmursplate klar for bygging, nøkkelferdig hytte fra våre leverandører.
Dette kommer i tillegg: Dokumentavgift på tomt, torvtak, byggestrøm, renovasjon under bygging, byggesaksgebyr og tilkoblingsavgift til Drangedal kommune. Totalt vil tilleggskostnadene beløpe seg til kr 210.000 – 250.000 +/- 10 %, avhengig av hyttestørrelse og tomtepris.
Innvendig og utvendig overflatebehandling, er ikke inkludert i ovennevnte, da dette er noe mange velger å utføre selv.
Gautefalltomter AS tar forbehold om trykkfeil og endringer.


